套一、二、三、四户型!成都金牛区侯家花园保租房项目介绍
admin
阅读:38
2025-10-14 16:06:10
评论:0
💡为方便大家了解成都房产情况,更方便大家租房、买房
🏠小编建立了“住在成都”栏目,将于每周一至周五晚上9点准时带来保障房、人才驿站、人才住房、长租公寓信息盘点
感兴趣的小伙伴可以每天来看看哦~
今天小编来给大家介绍
金牛区保租房项目
——城投臻寓·侯家花园
一起来看看周边配套、户型情况吧
PART
01
项目地址
城投臻寓·侯家花园保障性租赁住房项目分为A、B两区,分别位于成都市金牛区侯家桥二街55号、38号
PART
02
周边配套
交通情况:临近地铁6号线侯家桥站
商业配套:紧邻成都天府艺术公园、犀浦体育公园、成都欢乐谷等城市绿地;3公里生活圈内,分布有爱琴海购物中心、成都欢乐谷商业街等商业设施。
教育配套:项目周边还坐落有成都市全兴小学、成都市兴盛小学、成都七中万达学校
医疗配套:成都复兴医院、金牛区疾病预防控制中心等基础教育医疗配套。
PART
03
房源户型
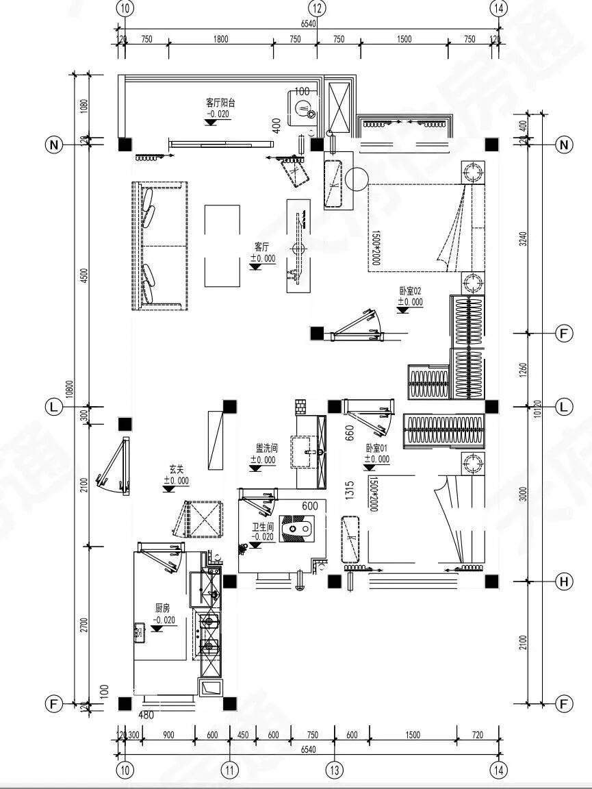
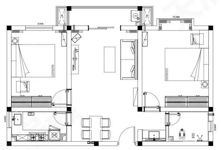
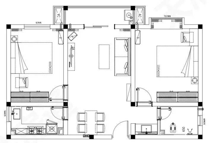
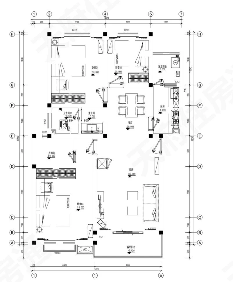
侯家花园保租房为多层步梯,A区共分为两批次分别推出过486套(间),25套(间);有套二、套三、套四多种户型。B区共分为两批次分别推出过841套(间),276套(间),有套一、套二、套三、套四多种户型,建面约在40㎡-149㎡。套一都为按套整租,部分小套二按套整租,套三、套四为按间出租。
侯家花园A区户型图:
展开全文
(即可查看大图)






图源:天府住房通(下同)
侯家花园B区户型图:
(即可查看大图)








推荐工具:
发表评论
